17 апреля 2018
Эта маленькая московская квартира стала настоящим произведением дизайна и комфорта благодаря смелости архитекторов и владельцев. Свет, дерево, стиль и очень много мест для хранения.
.jpg)
.jpg)
.jpg)
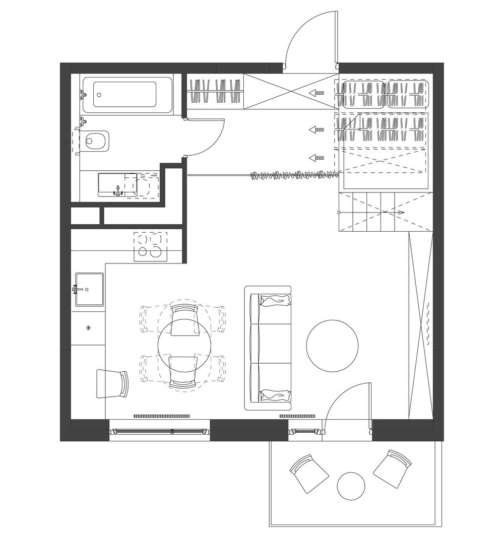
Архитекторы Studio Bazi проработали интерьер квартиры площадью всего 35 квадратных метров в Москве. Они сумели решить главную задачу и создать открытое пространство, наполненное светом, уютом и стилем. В квартире предусмотрено достаточно мест для хранения вещей и организована спальная зона в деревянном боксе, тем самым обособленная от гостиной и кухни. Ступени, ведущие к компактной спальне, сделаны устойчивыми, красивыми и функциональными, позволяя спрятать различные мелочи, а непосредственно пространство под ней скрывает крупную бытовую технику. Эта часть мебели покрыта сосновыми панелями, что делает интерьер более тёплым. По эскизам архитекторов выполнены также шкаф и полки. Возле окна предусмотрено рабочее место. Плотные шторы отделяют прихожую от жилой части резиденции.
.jpg)
.jpg)
.jpg)
.jpg)

.jpg)
.jpg)
.jpg)
.jpg)
.jpg)
Фотографии: Ilya Ivanov
По материалам сайта hqroom.ru
ипотека квартира в новостройке
8 (812) 335 40 55 (администрация портала) info@spbnovostroyka.ru
СПб Новостройка.ру: квартиры в строящихся домах и новостройки Санкт-Петербурга.
При использовании материалов обязательна активная ссылка.
Сайт от EXCLUSIVE design
Наши друзья



