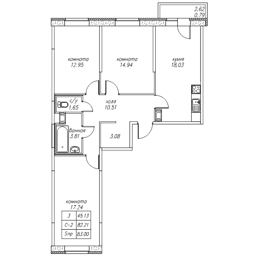
3-комнатная квартира, 83 кв.м, 4 этаж — 6 173 955 руб. (74 385 руб./м2)

ЖК «Юнтолово», метро «Беговая»

Этаж - 4/11
Общая площадь - 83 кв.м
Жилая - 45.13 кв.м

ул. 3-я Конная Лахтаобъект на карте

Приморский район, Санкт-Петербург

Метро «Беговая» (25 мин.)

Тип дома: кирпично-монолитный

Срок сдачи: 4 кв. 2017 года

Паркинг подземный

Застройщик «Главстрой-СПб»

Описание 3-комнатной квартиры

Санузел: совмещенный. Ипотека.

Описание ЖК «Юнтолово» , метро «Беговая»

Новый жилой комплекс «Юнтолово» от строительной компании «Главстрой-СПб» строится в Приморском районе Санкт-Петербурга. На участке площадью 437 га около Юнтоловского заповедника будет построено 2,2 млн кв.м. жилья, рассчитанного на проживание 70 000 человек. 

Первая очередь ЖК «Юнтолово» состоит из 14 кирпично-монолитных 5-этажных корпусов общей площадью 114 000 кв.м., сдана в эксплуатацию в декабре 2014 года. Во встроенных помещениях домов разместятся аптека и магазины различного назначения. В июле 2015 года начато строительство второй очереди ЖК «Юнтолово».

В ЖК «Юнтолово» запроектированы:

  • Студии — от 23 до 39 кв.м.
  • Однокомнатные — от 34 до 43 кв.м.
  • Двухкомнатные — от 50 до 69 кв.м.
  • Трехкомнатные — от 70 до 100 кв.м.

В каждой квартире жилого комплекса «Юнтолово» выполнена чистовая отделка в светлых тонах:

  • Двухкамерные пластиковые окна;
  • Входные и межкомнатные двери;
  • Качественные обои;
  • Линолеум и плинтуса;
  • Полный комплект сантехники, кухонная мойка.

Жилой комплекс «Юнтолово» возводится в в экологически благоприятной зоне, недалеко от Юнтоловского заказника, Лахтинского разлива и Финского залива. 

Строительная компания «Главстрой-СПб» уделяет большое внимание развитию инфраструктуры и рекреационных зон в  ЖК «Юнтолово». По мере реализации проекта в ЖК «Юнтолово» будут построены социальные и коммерческие объекты: детские сады и школы, различные магазины, детская и взрослая поликлиники, пожарная часть и отделение полиции, кинотеатр, бассейн, библиотека и другие объекты инфраструктуры.

ЖК «Юнтолово» отличает хорошая транспортная доступность. Неподалеку расположены съезды с Кольцевой автодороги (КАД) и Западного скоростного диаметра (ЗСД), Приморское шоссе. В 10 минутах езды на автомобиле — Финский залив.

показать описаниескрыть

Еще новости

Рейтинг застройщиков 2019

Застройщики Санкт-Петербурга и Ленинградской области: объем строительства и сроки сдачи.

8 (812) 335 40 55 (администрация портала) info@spbnovostroyka.ru

СПб Новостройка.ру: квартиры в строящихся домах и новостройки Санкт-Петербурга.
При использовании материалов обязательна активная ссылка.

Сайт от EXCLUSIVE design

Наши друзья