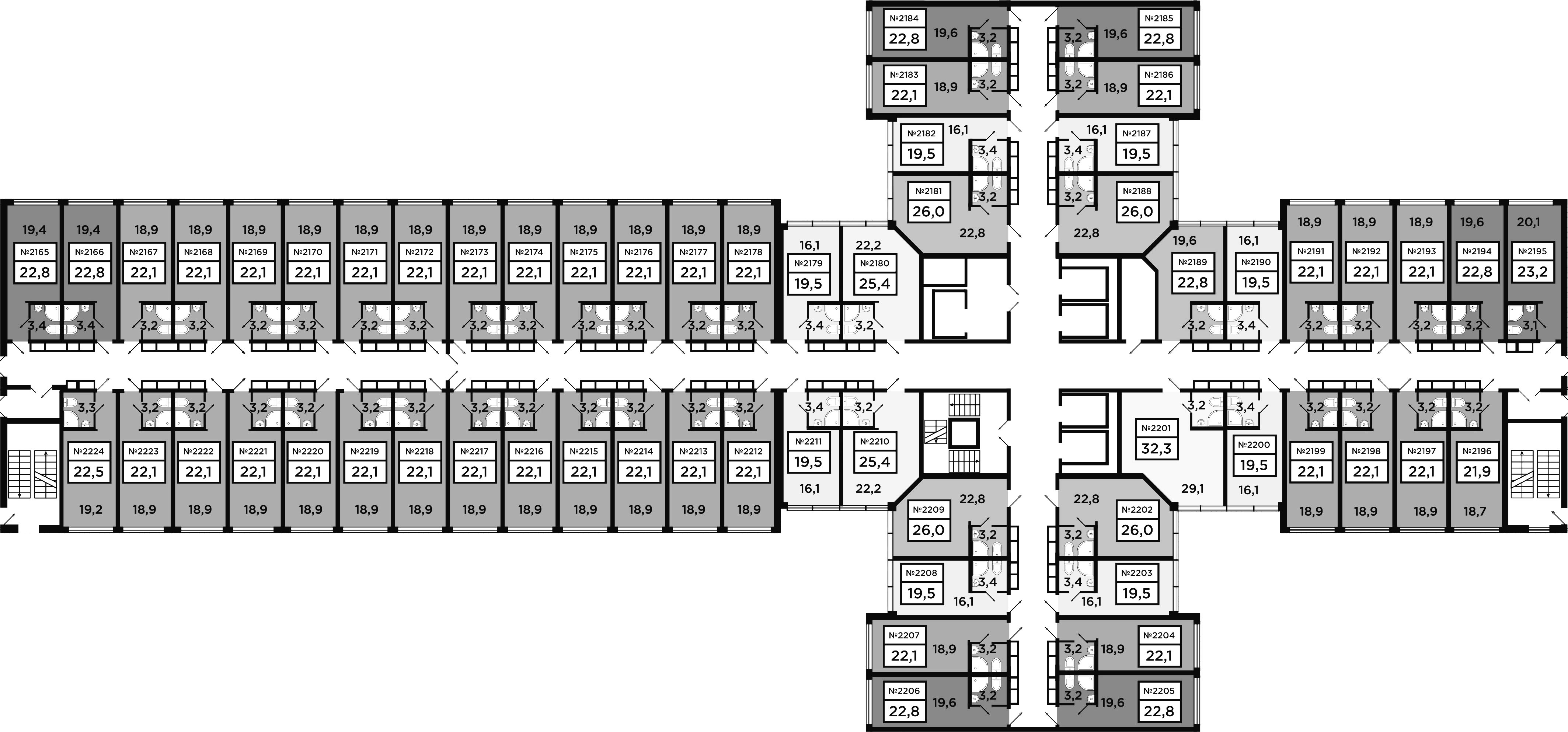
Этаж - 17/20
Общая площадь - 19.5 кв.м
Санкт-Петербург, пр. Энгельса, д. 174объект на карте
Выборгский район, Санкт-Петербург
Метро «Озерки», «Парнас», «Пр. Просвещения» (15 мин. пеш.)
Тип дома: монолит
Срок сдачи: 4 кв. 2020 года
Высота потолков: 2.8 м
Безопасность: консьерж, круглосуточная охрана
Паркинг есть




