Студия, 24.86 кв.м, 15 этаж — 5 444 340 руб. (219 000 руб./м2)

ЖК «Новоорловский», метро «Озерки», «Пр. Просвещения»

Этаж - 15/25
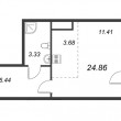
Общая площадь - 24.86 кв.м
Жилая - 11.41 кв.м, Кухня - 3.68 кв.м

Суздальское ш. / Новоорловская ул.объект на карте

Приморский район, Санкт-Петербург

Метро «Озерки», «Пр. Просвещения» (16 мин. на авто)

Тип дома: панельный

Срок сдачи: 2 кв. 2017 года

Паркинг наземный

Застройщик «ЮИТ Санкт-Петербург»

Описание квартиры-студии

Студия. Отделка. Санузел: совмещенный. Ипотека.

Описание ЖК «Новоорловский» , метро «Озерки», «Пр. Просвещения»

Масштабный жилой проект финского концерна YIT реализуется на территории 46 гектар, расположенной рядом с Новоорловским лесопарком.

Архитектурная концепция «Новоорловского» в стиле неоклассики разработана бюро известного испанского архитектора Рикардо Бофилла Taller de Arquitectura.

Главное отличие проекта — комплексный подход к застройке территории.

На территории 46 гектар будет построено около 10 000 квартир, наземные многоярусные автостоянки, объекты социальной, бытовой и коммерческой инфраструктуры, в полном объеме обеспечивающие потребности жителей.

На территории 46 гектар будет построено около 7 000 квартир, наземные многоярусные автостоянки, объекты социальной, бытовой и коммерческой инфраструктуры, в полном объеме обеспечивающие потребности жителей. Все входы в коммерческие помещения ориентированы на внешнюю пешеход ную зону и не пересекаются с входами в жилые парадные, что гарантирует приватность и безопасность проживания.

Запланировано открытие пяти детских садов, двух школ, магазинов, аптек, супермаркета, спортивно-досугового комплекса и других объектов. Предусматривается контроль за соответствием назначения коммерческих помещений инфраструктурному плану и тщательный отбор арендаторов.

Для парковки автомобилей предусмотрены многоярусные отдельностоящие паркинги, расположенные вдоль границ территории и внутренних улиц. Это позволит создать буферную зону между жилыми домами и автомагистралями, а также освободить дворы от припаркованных автомобилей.

Финские традиции проявляются в продуманности деталей: велодорожки и спортивные площадки, красочные финские детские площадки Lappset, пандусы, системы комплексного видеонаблюдения. Особый уют будет создавать ландшафтный дизайн с живыми изгородями из декоративных кустарников.

Масштабный жилой массив «Новоорловский» объединяет кварталы, разделенные небольшими улицами. Кварталы возводятся в едином архитектурном стиле — современные дома с красивыми фасадами, в окружении большого лесопарка.

Территория комплекса разделена на несколько фаз строительства. Первая фаза примыкает к Суздальскому шоссе и включает шесть 25-этажных домовбашен, четыре 7-этажных дома, шесть многоуровневых паркингов, школу и два детских сада. Центральной осью станет пешеходная торговая улица, на которой будут расположены магазины, аптеки, салоны красоты, другие необходимые объекты инфраструктуры. Предусмотрено более 20 встроенных коммерческих помещений целевого назначения с отдельными входами с внешней стороны зданий (входы в жилые парадные находятся на внутренней дворовой территории).

Сразу после ввода в эксплуатацию первой фазы строительства жители получат возможность пользоваться магазинами, детскими садами, школой и другими объектами социально-бытового назначения, находящимися в шаговой доступности. Жизнь в мегаполисе дает широкие возможности: образование, досуг, активный отдых, яркие спортивные и культурные события. Но при этом большой город учит ценить и планировать время. Это просто, если Вы живете в правильно организованном пространстве.

В «Новоорловском» все необходимое будет у Вас буквально под рукой. После рабочего дня Вы потратите минимум времени, чтобы забрать ребенка из детского сада или школы, совершить ежедневные покупки. Продукты, одежда, аптека, салоны красоты — здесь будет все. У Вас останется время на главное — на общение с близкими, увлечения, на приятные прогулки или занятия спортом.

ЮИТ разработал целый ряд специальных мер: Вашу безопасность на всей территории комплекса будут обеспечивать профессиональные сотрудники охраны и современные интегрированные системы безопасности, включая видеонаблюдение на базе IP-видеокамер, контроль и управление доступом, домофонную систему FERMAX.

показать описаниескрыть

Еще новости

Рейтинг застройщиков 2019

Застройщики Санкт-Петербурга и Ленинградской области: объем строительства и сроки сдачи.

8 (812) 335 40 55 (администрация портала) info@spbnovostroyka.ru

СПб Новостройка.ру: квартиры в строящихся домах и новостройки Санкт-Петербурга.
При использовании материалов обязательна активная ссылка.

Сайт от EXCLUSIVE design

Наши друзья