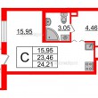
Этаж - 1/5
Общая площадь - 24.21 кв.м
Жилая - 15.95 кв.м
Площадь комнат - 15.95 кв.м
Пушкин, ул. Ломоносоваобъект на карте
Пушкинский район, Санкт-Петербург
Тип дома: монолит
Срок сдачи: 2 кв. 2020 — 3 кв. 2020
Высота потолков: 2.8 м




