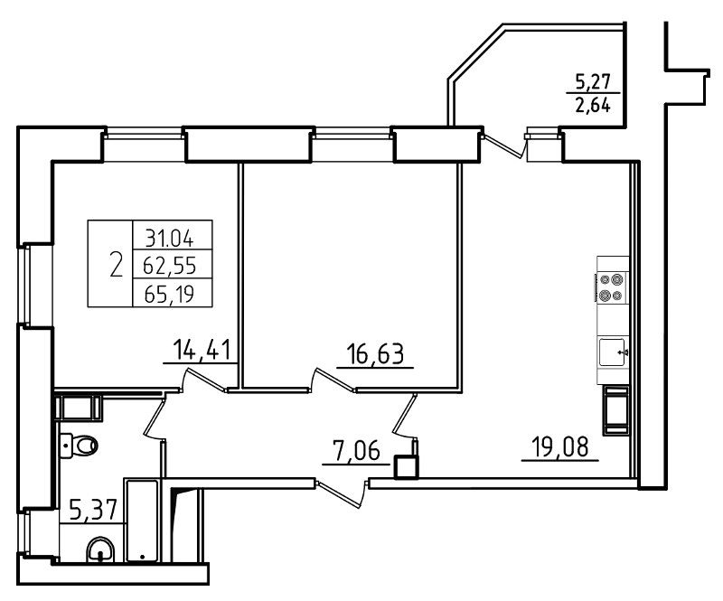
2-комнатная квартира, 65.1 кв.м, 14 этаж — 9 500 000 руб. (145 929 руб./м2)

ЖК «Капитал», метро «Ул. Дыбенко»

Этаж - 14/20
Общая площадь - 65.1 кв.м
Жилая - 31.04 кв.м, Кухня - 19.08 кв.м

Кудрово, объект на карте

Всеволожский район, Ленинградская обл.

Метро «Ул. Дыбенко» (15 мин. тр.)

Тип дома: кирпичный

Срок сдачи: 4 кв. 2019 года, дом сдан

Паркинг подземный

Лифт: mitsubishi elevators

Застройщик «Строительный трест»

Описание 2-комнатной квартиры

Санузел: совмещенный. Ипотека.

Описание ЖК «Капитал» , метро «Ул. Дыбенко»

ЖК «КАПИТАЛ» – ОДИН ИЗ ЛУЧШИХ КОМПЛЕКСОВ В КУДРОВО

Разнообразные функциональные планировки. Качественная предчистовая отделка.

КОМПЛЕКС ДЛЯ ЦЕНИТЕЛЕЙ КОМФОРТА И УЮТА

  • Школа и детский сад на территории
  • Хорошая экология
  • Современная инженерия
  • Надежный застройщик

ЦИФРЫ И ФАКТЫ

  • территория комплекса 25 га
  • до КАД 5 минут
  • площадь квартир 35-94 кв.м.
  • около 5000 квартир
  • 15 минут пешком до метро
  • 2,75 м. высота потолков

ЖК «Капитал» – комплекс, отличающийся продуманной инфраструктурой и стильной архитектурой. Во дворах – детские и спортивные площадки, зоны отдыха. По периметру – велодорожки, прогулочные аллеи. Инфраструктура района достаточно развита. Рядом находятся школы, магазины, ТРК «МЕНА Дыбенко», «Лента» и другие гипермаркеты, ледовая арена, спорткомплекс с бассейном, аптеки, отделения банков.

Метро: «Улица Дыбенко»
Адрес: Ленинградская область, Всеволожский район, дер. Кудрово, микрорайон Новый Оккервиль
Сдача дома: 7 очередь – 4 квартал 2019 г., 1-6 очереди – сданы
Класс жилья: комфорт
Материал: кирпично-монолитный
Договор: 214 ФЗ
Этажность: 12-23
В продаже: 1-к кв., 2-к кв., 3-к. кв.

Отличная экология
Рядом река Оккервиль с оборудованной пляжной зоной
Парк Оккервиль в пешей доступности
Неподалеку расположен лесной массив
Кудрово – живописный район, где нет промышленных и производственных объектов
Во дворе – газоны и клумбы, пешеходные аллеи и зоны отдыха

Дом и двор – комфорт и безопасность
Системы водоочистки, эффективной вентиляции, теплоснабжения с повышенной теплоотдачей, разводка коммуникаций в стяжке пола
Инфраструктурные объекты на первых этажах
Игровые и спортивные площадки
Автономная система газового отопления
Современные системы очистки воды и противопожарной безопасности

Паркинг
Подземные паркинги в каждой очереди строительства
Более 4000 машиномест
Отопление и видеонаблюдение
Открытые парковки для автомобилей гостей

Кирпичные стены толщиной от 640 до 770 мм гарантируют вам шумо- и теплоизоляцию.  Стеклопакеты с микровентиляцией.

Дома оснащены современными инженерными системами, такими как:

  • автономная система газового отопления;
  • радиаторы с улучшенной теплопередачей;
  • современные системы очистки воды и противопожарной безопасности.

Детские сады и школа расположены внутри квартала. Для досуга малышей и детей постарше предусмотрены благоустроенные детские игровые и спортивные площадки, велосипедные дорожки. В нижних этажах жилых домов разместятся магазины, аптеки, салоны красоты и другие предприятия сферы услуг.

Тем, кто ведёт здоровый образ жизни, несомненно, придётся по душе спортивный комплекс с бассейном и ледовой ареной рядом с домом.

показать описаниескрыть

Еще новости

Рейтинг застройщиков 2019

Застройщики Санкт-Петербурга и Ленинградской области: объем строительства и сроки сдачи.

8 (812) 335 40 55 (администрация портала) info@spbnovostroyka.ru

СПб Новостройка.ру: квартиры в строящихся домах и новостройки Санкт-Петербурга.
При использовании материалов обязательна активная ссылка.

Сайт от EXCLUSIVE design

Наши друзья